|
Hohe rechtwinklige Kante für
Velowege / Fahrradweg untauglich |
- durch Pfosten (je nach Geschmack, sollten für
Sehbehinderte in Kontrastfarbe zum Hintergrund
sein)
- durch Belagsunterschiede (Pflastersteine
sollten nur als Rinne angewandt werden,
Betonpflastersteine sind für kurze Strecken in
Fussgängerzonen sehr gut, denn Velos werden mit
"Klacken" für die FussgängerInnen leicht
hörbar).
Velowege auf
der Zickzacklinie vor den Trampassagieren
hindurch
Der Umbau wäre also so:
Der Velobereich und der Wartebereich der
wartenden Trampassagiere können in selber Weise
(wie beim Veloweg hinten durch) verschieden
abgegrenzt werden
-- durch Markierung (für Blinde nicht erkennbar,
auch von Sehenden z.T. nicht beachtet, ist
ungünstig)
-- durch Rinnen in Pflasterstein oder 10cm
breiten, länglichen Dolendeckeln
-- durch Kanten (am besten 2-4cm schiefe Kanten,
wird von allen taktil wahrgenommen, mit etwas
schiefer Fahrbahn zur Trottoirkante)
|
Verschiedene Varianten von
Rinnen und Kanten bei der Abgrenzung von
Velobereich / Fahrradbereich und
Fussgängerbereich.
|
- durch Pfosten (je nach Geschmack, sollten für
Sehbehinderte in Kontrastfarbe zum Hintergrund
sein)
- durch Belagsunterschiede (Eintrag 22.6.2003)
Eine solche Anwendung einer schrägen Kante wäre
der Veloweg bei Tramstationen in engen
Situationen, wenn der Veloweg auf einer
Zickzacklinie vor den Trampassagieren
hindurchführt.
Der Querschnitt wäre dieser:

|
Veloweg / Fahrradweg auf Zickzacklinie
vor Trampassagieren hindurch, plus
Signalisation Velo Tempo 5.
So funktioniert das zum Beispiel in
Strassburg oder auch in Freiburg im
Breisgau bei Busstationen sehr gut. Aber
die IG Velo der Schweiz (IG Schnello)
will diese Lösung für die Schweiz
nicht...
|
Autospur und Schienenspur bei Tramstationen zu
vereinen lohnt sich v.a. dann,
- wenn nur ein bis zwei Tramlinien die Strecke
befahren
- wenn kleiner bis mittlerer oder nur punktuell
grosser Motorfahrzeugverkehr herrscht, egal ob
Autos oder Lastwagen.
|

Inseltramstation mit Geländer.
|
Geländer an Tramhaltestellen-Inseln
- sind einerseits sinnvoll zur Trennung von
Motorfahrzeugverkehr und Fussgängerverkehr
- sind aber auch hinderlich
- weil kein flexibler Übergang möglich ist
- weil der Motorfahrzeugverkehr sich in einer
falscher Sicherheit wiegt und oft extra noch Gas
gibt, auch wenn am Ende ein Fussgängerstreifen
folgt.
Fussgängerstreifen bei Traminseln erhöhen die
Sicherheit auf jeden Fall und veranlassen den
Motorfahrzeugverkehr, vorsichtiger zu fahren und
vom Gas zu gehen:
- bei kleinerem Trampassagieraufkommen: ein
Fussgängerstreifen in der Mitte der Traminsel
- bei grösserem Trampassagieraufkommen: zwei
Fussgängerstreifen an den beiden Enden der
Traminsel
Wenn Fussgängerstreifen bei Traminseln fehlen,
ist dies ein Zeichen gröbster Fahrlässigkeit der
Verkehrspolitik.
Wenn Tramstationen keine Auffahrten für
RollstuhlfahrerInnen haben und/oder durch
Stangen oder Bänke so verstellt sind, dass
RollstuhlfahrerInnen die Stationen nicht
benutzen können, so ist dies ein Zeichen dafür,
dass die Verantwortlichen der Verkehrspolitik
selber nie im Rollstuhl die Tramstationen
getestet haben.
Wenn Tramstationen kein einziges Tramhäuschen
haben, ist dies Zeichen diskriminierender
Verkehrspolitik. Ein Tramhäuschen pro
Tramstation bei gegenüberliegenden
Tramhaltestellen ist das Minimum an Einrichtung.
Das Argument, dass ein Tramhäuschen die "Sicht
behindert", ist nicht stichhaltig, denn für
Trampassagiere oder VelofahrerInnen behindert
jedes Auto auch die "Sicht".
Wenn Tramstationen nicht einmal eine einzige
Bank aufweisen, so ist die Autofreundlichkeit
der Verkehrspolitik nicht mehr zu überbieten.
Für den öffentlichen Verkehr förderlich wäre es,
wenn Tramstationen jeweils speziell beleuchtet
würden, insbesondere die mit der Tramstation
zusammenhängenden Fussgängerstreifen.
Oberlichter in den Dächern von Tramhäuschen
lassen Wartebereiche lichtdurchflutet freundlich
erscheinen.
Verhältnis
Trampassagieraufkommen und Veloverkehr
Bei der Bemessung des Trampassagieraufkommens
ist zu unterscheiden zwischen
- schwachem, mittlerem, grossem und punktuell
grossem Trampassagieraufkommen
- schwachem, mittlerem, grossem und punktuell
grossem Fussgänger-Passierverkehr.
Speziell bei punktuell grossem
Trampassagieraufkommen oder punktuell grossem
Fussgänger-Passierverkehr können Tramstationen
gleich wie für schwaches bis mittleres
Trammpassagieraufkommen bzw.
Fussgänger-Passierverkehr eingerichtet werden.
Wegen einer Passagierspitze von 30 Minuten
täglich velofreundliche Massnahmen
auszuschliessen erscheint keine ausgewogene
Verkehrspolitik. Zudem sind auch bei hohem
Trampassagieraufkommen velofreundliche
Massnahmen realisierbar (siehe
Schweizer Norm 640 064 S.13 und S.22:
"Quelle und Ziel der Fahrgäste primär auf
der gegenüberliegenden Strassenseite").
Wie
das Beispiel Basel zeigt, wurde jedoch in den
letzten 20 Jahren an vielen Tramhaltestellen
sogar bei meist niedrigem Trampassagieraufkommen
jede velofreundliche Massnahme verweigert wie
bei den Tramstationen St.Johann-Tor,
Brombacherstrasse, Güterstrasse etc. bzw. der
Zustand für VelofahrerInnen sogar verschlimmert.
(Mitentscheidende
Organisation ist dabei die dumme IG-Velo
Basel, die sich nur für schnelle und
sportliche VelofahrerInnen einsetzt und
nichts dagegen hatte, dass bei Neubauten
von Tramstationen die Velos konsequent "in
die Schienen gejagt" werden, und dessen
Präsidium Ende 2002 eine Änderung sogar
mehrfach mit dem Argument abschmetterte,
es sei doch gerade erst umgebaut worden!)
Es erscheint, als hätten sich die
Verkehrsorganisationen und Ingenieurschulen
selbst Hürden auf dem Weg zur velofreundlichen
Strassengestaltung gestellt. Dies hat Folgen:
- Eltern verbieten den Kindern das Velofahren
- ältere Menschen ab 50 fahren gar nicht mehr
Velo
- alle VelofahrerInnen müssen mit Angst durch
Tramschienen fahren, vor allem bei Nässe, und
Autos parkieren legal auf breiten Trottoirs
(Beweis für wenig FussgängerInnen!)
- AutofahrerInnen jagen VelofahrerInnen zwischen
den Tramschienen
- Eltern müssen weiter Angst um ihre Kinder
haben, die Velo fahren
- AutofahrerInnen steigen sicher nicht aufs Velo
um, wenn Velofahren immer gefährlicher wird..
Es stellt sich auch der Verdacht, dass die
Argumente der "Schweizer Normen" gegen
velofreundliches Bauen parteipolitisch bzw.
auto-politisch beeinflusst sein könnten. So wird
das Umsteigen aufs Velo sicher nicht
attraktiver. Insgesamt erweisen sich die
Veloorganisationen in der Schweiz, v.a. aber in
Basel, bezüglich Tramstationengestaltung als
absolut unfähig, z.T. mit Behauptungen, wer
Angst vor Tramschienen habe, solle das Velo
stossen, oder über 50-Jährige sollten gar nicht
mehr Velo fahren. Die nachfolgenden Beispiele
sind der Beweis, und weitere Beispiele wären
möglich gewesen, sind aber nicht erwähnt.
Es ist zu wünschen, dass sich in den Bauämtern
und Veloorganisationen velofreundliche
Strassengestaltung durchsetzt, so dass
Trampassagiere und VelofahrerInnen gleichsam
etwas vom Verkehrsraum haben, und nicht den
FussgängerInnen 7m, dem Velofahrer aber nur
40-70cm zur Verfügung stehen.
| Verschiedene
Typen von Tramstationen bis 1980-er
Jahre |
 |
Tramstationen mit Zickzacklinien, in
Lage gegenüber, versetzt, oder in enger
Lage ohne Zickzacklinien. |
 |
Varianten von
Inseltramhaltestellen, mit
Fussgängerstreifen und Geländer. |
 |
Varianten von
Inseltramhaltestellen: versetzt oder an
der Seite der Strasse. |
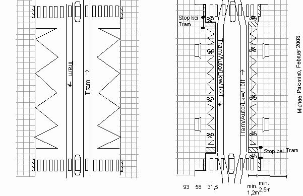
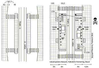
1.Teil:
Tramstationen im
Mischverkehr mit motorisiertem Verkehr
1.
Umbau: Tramhaltestelle mit
Zickzacklinie: Velos fahren auf
erhöhten Velowegen auf der
Zickzacklinie vor den wartenden
Trampassagieren hindurch -
Anwendung bei hoher Anzahl
Fussgänger oder bei schmalen
Trottoirs
z.B. Projekt Clarastrasse, Basel, 2003

Tramstation-Umbau in der Clarastrasse,
Basel, Vorschlag Palomino Februar 2003.
Eintrag der
Zickzack-Linie: 6.3.2003
Eintrag
der Geländerelemente: 30.3.2003
Eintrag
der Mindestabstände: 30.3.2003
|
Alter
Zustand (Konfrontationen, Stufen 1-10):
Trampassagier - Auto: 5: Auto kann sich
zwischen Tram und Trottoir drängen
Trampassagier - Velo: 5: Velo kann sich
zwischen Tram und Trottoir drängen
Velo - Auto: 3: genug Platz für Abstand
von Trottoirkante und Überholmanöver,
deshalb nur geringes Risiko
für RollstuhlfahrerInnen nicht
praktikabel: 10: keine Trottoirkante für
den Einstieg ins Tram da
Negativpunkt: lange Fussgängerstreifen,
falls überhaupt vorhanden
Negativpunkt: Stop des ganzen Verkehrs
bei Tram |
Umbau:
Verbesserungen und Verschlechterungen
(Konfrontationen, Stufen 1-10):
Trampassagier - Auto: 0: Tram blockiert
Auto vor der Tramhaltestelle
Trampassagier - Velo: 1: Velo stört
wartende Trampassagiere nicht; Velo
werden durch Schwelle und Pfosten
angehalten, langsamer zu fahren; Velo
wird durch Schwelle und Pfosten
angehalten, bei Anwesenheit des Trams an
der Schwelle zu warten.
Velo - Auto: 0: Trennung von
Autofahrspur und Veloweg durch
Trottoirkante
für RollstuhlfahrerInnen praktikabel: 0:
stufenloser Zugang zur Tramstation mit
Trottoirkante vorhanden
Pluspunkt: kürzere Fussgängerstreifen,
weil Tram und Autos dieselbe Fahrspur
benutzen
Pluspunkt: Autos müssen Tempo
reduzieren, da diese auf den Schienen
fahren müssen
Negativpunkt: der ganze Verkehr muss bei
Tram an der Tramstation halten.
Bemerkung: bei regelmässig hohem
Passagieraufkommen Mindestbreite des
gesamten Trottoirs 6m (Eintrag
30.3.2003). |
| Tabelle: Bilanz eines Umbaus
einer Strassen-Tramstation zu einer
Tramstation mit angehobenen
Velowegen vor den wartenden
Trampassagieren hindurch, Stop bei
Tram |
Vor dem
Umbau
|
|
Nach
dem Umbau
|
|
|

|
Anzahl
Trottoireinheiten total:
|
186
|
Anzahl
Trottoireinheiten total:
|
365
|
+ 96,2% |
|
|
|
|
ohne Velowege:
|
302
|
+ 62,4% |
|
links
|
rechts
|
|
|
|
links
|
rechts
|
|
|
|
93
|
93
|
|
|
|
182,5
|
182,5
|
|
+ 96,2% |
|
|
|
|
ohneVelowege:
|
151
|
151
|
|
+ 62,4% |
Konfrontationen
(Stufen 0-10)
|
|
|
|
|
|
|
| Trampassagier-Auto |
5
|
|
|
|
|
|
0
|
Trampassagier-Velo
|
5
|
|
|
|
|
|
1
|
Velo-Auto
|
3
|
|
|
|
|
|
0
|
|
|
für
RollstuhlfahrerInnen nicht
praktikabel
|
10
|
|
|
|
|
|
0
|
|
|
Konfrontationen
Bilanz:
|
23
|
|
|
|
|
|
1
|
|
|
|
|
|
|
|
|
|
|
|
|
|
|
+ lange
Fussgängerstreifen sind gefährlich
|
-
|
+ kurze
Fussgängerstreifen erhöhen
Sicherheit
|
+
|
+ Stop bei Tram
|
-
|
+ Stop bei Tram
|
-
|
|
|
|
|
|
|
+ Temporeduktion
der Autos auf Schienen
|
+
|
Der Vorschlag des
velofreundlichen und gleichzeitig
fussgängerfreundlichen Umbaus wurde nicht
realisiert. Das dumme Basler Baudepartement
bevorzugte die Verschwenkung der Tramgeleise
nahe zur Trottoirkante, so dass die
VelofahrerInnen heute zwischen den Schienen
landen.
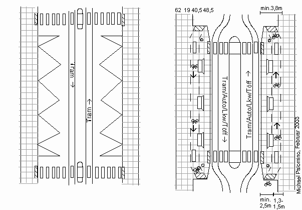
2.
Umbau: Tramhaltestelle mit
Veloweg hinter dem Tramhäuschen
hindurch - Anwendung bei
niedriger bis mittlerer Anzahl
Fussgänger oder bei breiten
Trottoirs mit hoher Anzahl
Fussgänger

Tramstation /
Strassenbahnhaltestelle mit Veloweg
/ Fahrradweg hinter dem Tramhäuschen
hindurch.
Eintrag
Fussgängerstreifenelemente auf
Veloweg: 6.3.2003
Eintrag der Geländerelemente:
30.3.2003
Eintrag der Mindestabstände:
28.6.2003
|
alter
Zustand (Konfrontationen, Stufen
1-10):
Trampassagier - Auto: 5: Auto kann
sich ohne Schwelle zwischen Tram und
Trottoir drängen
Trampassagier - Velo: 5: Velo kann
sich ohne Schwelle zwischen Tram und
Trottoir drängen
Velo - Auto: 3: genug Platz für
Abstand von Trottoirkante und
Überholmanöver Auto-Velo, deshalb
nur geringes Risiko
für RollstuhlfahrerInnen nicht
praktikabel: 10: keine Trottoirkante
für den Einstieg ins Tram vorhanden
Negativpunkt: lange
Fussgängerstreifen, falls überhaupt
vorhanden
Negativpunkt: Stop des ganzen
Verkehrs bei Tram |
Umbau: Verbesserungen
und Verschlechterungen
(Konfrontationen, Stufen 1-10):
Trampassagier - Auto: 0: Tram
blockiert Auto vor der
Tramhaltestelle
Trampassagier - Velo: 3 (bei
Hauptverkehrszeiten): Trampassagiere
müssen den Velostreifen auf dem
Trottoir beachten. Das Risiko von
Konfrontationen zwischen Velo und
Trampassagieren ist jedoch relativ
gering wegen Ausweichmöglichkeiten
für beide Seiten, ohne dass Stufen
überwunden werden müssen und ohne
dass motorisierter Verkehr sich
einmischen würde. Velos können die
Tramhaltestelle auch während des
Ein-Aussteigens der Trampassagiere
vorsichtig passieren (Belagswechsel
möglich, um schnelle Velos
abzubremsen).
Velo - Auto: 0: Trennung von
Autofahrspur und Veloweg durch
Distanz und Stufe
für RollstuhlfahrerInnen
praktikabel: 0: stufenloser Zugang
zur Tramstation mit Trottoirkante
vorhanden
Pluspunkt: kürzere
Fussgängerstreifen, weil Tram und
Autos dieselbe Fahrspur benutzen
Pluspunkt: Autos müssen Tempo
reduzieren, da diese auf den
Schienen fahren müssen
Bemerkung:
- bei niedriger bis mittlerer
Anzahl FussgängerInnen sind keine
Fussgängerstreifenelemente auf dem
Velostreifen nötig, da gegenseitiges
Ausweichen möglich ist. (Eintrag
30.3.2003).
- bei regelmässig hohem
Passagieraufkommen sollte
Mindestbreite 8m (30.3.2003) (z.B.
in einer Fussgängerzone). |
Tabelle:
Bilanz eines Umbaus einer
Strassen-Tramstation zu einer
Tramstation mit Veloweg hinter
dem Tramhäuschen hindurch
|
Vor
dem Umbau
|
|
|
Nach
dem Umbau
|
|
|

|
Anzahl
Trottoireinheiten total:
|
186
|
|
Anzahl
Trottoireinheiten total:
|
340
|
+ 82,8% |
|
|
|
|
|
ohne Velowege
/ ohne Radwege:
|
259
|
+ 39,2% |
|
links
|
rechts
|
|
|
|
links
|
rechts
|
|
|
|
93
|
93
|
|
|
|
170
|
170
|
|
+ 82,8% |
|
|
|
|
|
ohneVelowege:
|
129,5
|
129,5
|
|
+ 39,2% |
Konfrontationen
(Stufen 0-10)
|
|
|
|
|
|
|
|
| Trampassagier-Auto |
5
|
|
|
|
|
|
0
|
Trampassagier-Velo
|
5
|
|
|
|
|
|
3
|
Velo-Auto
|
3
|
|
|
|
|
|
0
|
|
|
für
RollstuhlfahrerInnen nicht
praktikabel
|
10
|
|
|
|
|
|
0
|
|
|
Konfrontationen
Bilanz:
|
23
|
|
|
|
|
|
3
|
|
|
|
|
|
|
|
|
|
|
|
|
|
|
+ lange
Fussgängerstreifen sind
gefährlich
|
-
|
+ kurze
Fussgängerstreifen erhöhen
Sicherheit
|
+
|
+ Stop bei
Tram
|
-
|
+ Stop bei
Tram
|
-
|
|
|
|
|
|
|
+ kein Stop
bei Tram für Velos
|
+
|
|
|
|
|
|
|
+
Temporeduktion der Autos, die
auf den Schienen fahren müssen
|
+
|
Schnelle Velos ("Schnellos") fahren
sowieso zwischen den Tramschienen...
3.
Untauglicher Umbau der
Tramhaltestelle
Barfüsserplatz der Tramlinie
3, Basel: Velos werden durch
die Schienen gejagt, bei
Gefälle / Steigung
Beispiel: Haltestelle
Barfüsserplatz, Tramlinie 3,
abwärts ohne Autoverkehr

Umbau einer Tramstation mit
Verschwenkung, die Velos /
Fahrräder werden durch die
Schienen gejagt, und das noch
bei Gefälle / Steigung.
Eintrag
Fussgängerstreifenelemente auf
Veloweg: 6.3.2003
Eintrag der Geländerelemente:
30.3.2003
Eintrag der Mindestabstände:
30.3.2003
Dem dummen Basler Baudepartement
ist es egal, der dummen IG-Velo
Basel ist es egal, und andere
Lösungen werden nicht in
Betracht gezogen. So lange der
Lohn stimmt und die dumme
IG-Velo in Basel nur aus
schnellen VelofahrerInnen
besteht, wird an dieser
velofeindlichen Praxis in Basel
nichts ändern.
|
Alter
Zustand (Konfrontationen, Stufen
1-10):
Trampassagier - Auto: 5: Auto
kann sich ohne Schwelle zwischen
Tram und Trottoir drängen
Trampassagier - Velo: 5: Velo
kann sich ohne Schwelle zwischen
Tram und Trottoir drängen
Velo - Auto: 3: genug Platz für
Abstand von Trottoirkante und
Überholmanöver Auto-Velo,
deshalb nur geringes Risiko
für RollstuhlfahrerInnen nicht
praktikabel: 10: keine
Trottoirkante für den Einstieg
ins Tram vorhanden
Negativpunkt: lange
Fussgängerstreifen, falls
überhaupt vorhanden
Negativpunkt: Stop des ganzen
Verkehrs bei Tram |
Umbau:
Verbesserungen und
Verschlechterungen
(Konfrontationen, Stufen 1-10):
Trampassagier - Auto: 0: Autos
dürfen nicht fahren
Trampassagier - Velo: 9:
links: sobald ein Fussgänger auf
die Strasse tritt, kann der
Velofahrer kaum noch ausweichen,
höchste Unfallgefahr durch
Tramschienen, aber das Anhalten
ist durch die Steigung nicht
schwierig; Tram blockiert Velo
vor der Tramhaltestelle
rechts: sobald ein Fussgänger
auf die Strasse tritt, kann der
Velofahrer kaum noch ausweichen,
höchste Unfallgefahr durch
Tramschienen, das Anhalten ist
aufgrund des Gefälles erschwert;
Tram blockiert Velo vor der
Tramhaltestelle
Velo - Auto: 0: Autos dürfen
nicht fahren
Velo - Tramschiene:
links: 9: sobald eine
Unregelmässigkeit auftritt, kann
der Velofahrer kaum noch
ausweichen, höchste Unfallgefahr
durch Tramschienen, aber das
Anhalten ist durch die Steigung
nicht schwierig
rechts: 9: sobald eine
Unregelmässigkeit auftritt, kann
der Velofahrer kaum noch
ausweichen, höchste Unfallgefahr
durch Tramschienen, aber das
Anhalten ist durch das Gefälle
erschwert
für RollstuhlfahrerInnen
praktikabel: 0: stufenloser
Zugang zur Tramstation mit
Trottoirkante vorhanden
Gefälle und Tramschiene:
links: 0: Steigung begünstigt
Anhalten bei auftretender
Unregelmässigkeit
rechts: 5: Gefälle erschwert
Anhalten bei auftretender
Unregelmässigkeit
Positiv: kürzere
Fussgängerstreifen, weil Tram
und Autos dieselbe Fahrspur
benutzen
Negativ: der gesamte Verkehr
muss bei Tram anhalten. |
| Tabelle:
Bilanz eines Umbaus einer
Strassen-Tramstation zu
einer Tramstation mit
Verschwenkung und Velos
durch die Schienen gejagt
|
Vor
dem Umbau
|
|
|
Nach
dem Umbau
|
|
|

|
| Anzahl
Trottoireinheiten total: |
186 |
|
Anzahl
Trottoireinheiten total: |
302,75 |
+ 82,8% |
|
links
|
rechts
|
|
|
links
|
rechts
|
|
|
|
93
|
93
|
|
|
93
|
209,75
|
|
|
|
|
|
|
|
|
+ 125,5%
|
|
|
Konfrontationen
(Stufen 0-10)
|
links
|
rechts
|
|
|
links
|
rechts
|
| Trampassagier-Auto |
0
|
0
|
|
|
0
|
0
|
Trampassagier-Velo
|
9
|
5
|
|
|
9
|
9
|
Velo-Auto
|
0
|
0
|
|
|
0
|
0
|
|
|
Velo-Tramschiene
|
9
|
0
|
|
|
9
|
9
|
|
|
für
RollstuhlfahrerInnen nicht
praktikabel
|
ja: 0
|
nein:10
|
|
|
ja: 0
|
ja: 0
|
|
|
Gefälle
Tramschiene
|
|
|
|
|
0
|
5
|
|
|
Konfrontationen
Bilanz:
|
18
|
15
|
|
|
18
|
23
|
|
|
|
|
|
|
|
|
|
|
|
|
|
| + lange
Fussgängerstreifen sind
gefährlich |
-
|
|
+ kurze
Fussgängerstreifen erhöhen
Sicherheit |
+
|
| + Stop bei
Tram |
-
|
|
+ Stop bei
Tram |
-
|
|
|
|
|
|
|
|
+
Temporeduktion der Autos auf
Schienen |
+
|
4.
Untauglicher Umbau der
Tramhaltestelle
Solothurnerstrasse,
Basel: Velos werden
durch die Schienen
gejagt
ebenso: Haltestellen IWB,
Unterführung SBB,
Mülhauserstrasse etc., und
noch viele andere, weil
das dumme Baudepartement
Basel bis heute keine
fussgängerfreundlichen
Tramhaltestellen
realisieren will, die
gleichzeitig
velofreundlich sind.

Velofeindlicher Umbau einer
Tramstation mit
Verschwenkung der Geleise an
den Trottoirrand, und die
Velos / Fahrräder werden
durch die Schienen gejagt,
Beispiel:
Solothurnerstrasse, Basel.
|
Alter Zustand
(Konfrontationen, Stufen
1-10):
Trampassagier - Auto: 5:
Auto kann sich zwischen Tram
und Trottoir drängen
Trampassagier - Velo: 5:
Velo kann sich zwischen Tram
und Trottoir drängen
Velo - Auto: 3: genug Platz
für Abstand von
Trottoirkante und
Überholmanöver, deshalb nur
geringes Risiko
für RollstuhlfahrerInnen
nicht praktikabel: 10: keine
Trottoirkante für den
Einstieg ins Tram da
Negativpunkt: lange
Fussgängerstreifen, falls
überhaupt vorhanden
Negativpunkt: Stop des
ganzen Verkehrs bei Tram
|
Umbau:
Verbesserungen und
Verschlechterungen
(Konfrontationen, Stufen
1-10):
Trampassagier - Auto: 0:
Tram blockiert Auto vor der
Tramhaltestelle
Trampassagier - Velo: 9:
sobald ein Fussgänger auf
die Strasse tritt, kann der
Velofahrer kaum noch
ausweichen, höchste
Unfallgefahr durch
Tramschienen; Tram blockiert
Velo vor der
Tramhaltestelle.
Velo - Auto: 10: volle
Konfrontation auf
eingeschränkter Fahrbahn,
zusätzlich noch mit
Gefährdung durch
Tramschienen
Velo - Tramschiene: 9:
sobald eine
Unregelmässigkeit auftritt,
kann der Velofahrer kaum
noch ausweichen, höchste
Unfallgefahr durch
Tramschienen
für RollstuhlfahrerInnen
praktikabel: 0: stufenloser
Zugang zur Tramstation mit
Trottoirkante vorhanden
Positiv: Temporeduktion von
Autos auf Schienen
Positiv: kürzere
Fussgängerstreifen, weil
Tram und Autos dieselbe
Fahrspur benutzen
Negativ: der gesamte Verkehr
muss bei Tram anhalten |
Tabelle: Bilanz
eines Umbaus einer
Strassen-Tramstation zu
einer Tramstation mit
Verschwenkung - Velos in
die Tramschienen gejagt
|
Vor dem Umbau
|
|
Nach dem Umbau
|
|
|

|
Anzahl
Trottoireinheiten total:
|
186
|
Anzahl
Trottoireinheiten total:
|
434
|
+
133,3%
|
|
|
|
|
ohne
Velowege:
|
259
|
+
39,2%
|
|
links
|
rechts
|
|
|
links
|
rechts
|
|
|
|
93
|
93
|
|
|
217
|
217
|
|
|
|
|
|
|
|
+
133,3%
|
+
133,3%
|
|
|
Konfrontationen
(Stufen 0-10)
|
|
|
|
|
|
|
| Trampassagier-Auto |
5
|
|
|
|
|
0
|
Trampassagier-Velo
|
5
|
|
|
|
|
9
|
|
|
Velo-Auto
|
3
|
|
|
|
|
10
|
|
|
Velo-Tramschiene
|
0
|
|
|
|
|
9
|
|
|
für
RollstuhlfahrerInnen
nicht praktikabel
|
10
|
|
|
|
|
0
|
|
|
Konfrontationen
Bilanz:
|
23
|
|
|
|
|
28
|
|
|
|
|
|
|
|
|
|
|
|
|
|
| +
lange Fussgängerstreifen
sind gefährlich |
-
|
+
kurze Fussgängerstreifen
erhöhen Sicherheit |
+ |
| + Stop
bei Tram |
-
|
+ Stop
bei Tram |
|
|
|
|
|
|
|
+
Temporeduktion der Autos
auf Tramschienen |
+
|
|
|
|
|
|
|
+
Autos jagen Velos
zwischen den Schienen |
-
|
5.
Untauglicher Umbau:
Tramhaltestelle
Tellplatz, Basel:
Velos / Fahrräder
werden zwischen die
Tramschienen gejagt
mit Weichen
Etwas kriminelleres und
velofeindlicheres gibt
es nicht, und in Basel
bleibt das schon seit
Jahrzehnten so stehen.
So lange der Lohn
stimmt, unternimmt das
velofeindliche
Baudepartement in Basel
nichts. Das macht dem
Namen "Tell" alle Ehre.
Die VelofahrerInnen
sollen andere Strassen
benutzen...

Umbau der Tramstation
Tellplatz mit
Verschwenkung, die
Velos / Fahrräder
werden durch die
Schienen gejagt, mit
Weichen. Beispiel:
Basel, Tellplatz.
|
Alter
Zustand
(Konfrontationen, Stufen
1-10):
Trampassagier - Auto: 5:
Auto kann sich zwischen
Tram und Trottoir
drängen
Trampassagier - Velo: 5:
Velo kann sich zwischen
Tram und Trottoir
drängen
Velo - Auto: 3:
genug Platz für Abstand
von Trottoirkante und
Überholmanöver, deshalb
nur geringes Risiko
für RollstuhlfahrerInnen
nicht praktikabel: 10:
keine Trottoirkante für
den Einstieg ins Tram da
Negativpunkt: lange
Fussgängerstreifen,
falls überhaupt
vorhanden
Negativpunkt: Stop des
ganzen Verkehrs bei Tram |
Umbau:
Verbesserungen und
Verschlechterungen
(Konfrontationen, Stufen
1-10):
Trampassagier - Auto: 0:
Tram blockiert Auto vor
der Tramhaltestelle
Trampassagier - Velo: 9:
sobald ein Fussgänger
auf die Strasse tritt,
kann der Velofahrer kaum
noch ausweichen, höchste
Unfallgefahr durch
Tramschienen; Tram
blockiert Velo vor der
Tramhaltestelle.
Velo - Auto: 10: volle
Konfrontation auf
eingeschränkter
Fahrbahn, zusätzlich
noch mit Gefährdung
durch Tramschienen
Velo - Tramschiene: 10:
sobald eine
Unregelmässigkeit
auftritt, kann der
Velofahrer kaum noch
ausweichen, höchste
Unfallgefahr durch
Tramschienen, zusätzlich
noch spitzwinklig mit
Weichen
für RollstuhlfahrerInnen
praktikabel: 0:
stufenloser Zugang zur
Tramstation mit
Trottoirkante vorhanden
Positiv: Temporeduktion
von Autos auf Schienen
Negativ: der gesamte
Verkehr muss bei Tram
anhalten
Negativ: Weichen sind
Velokiller und der
Querungswinkel
entspricht nicht mehr
der Norm SN, die einen
Querungswinkel von 45°
vorschreibt. Diese
Situation tritt am
Tellplatz gleich zweimal
auf.
Bemerkung:
- Zickzacklinie auf dem
Trottoir, um zu
verhindern, dass Autos
auf dem breiten Trottoir
halten oder parkieren
(Eintrag 30.3.2003).
- Wirkung der
Zickzacklinie auf dem
Trottoir: Es halten sich
auf der Zickzacklinie
auch kaum
FussgängerInnen auf. Die
Trampassagiere warten
fast alle hinter der
Zickzacklinie
(30.3.2003). |
Tabelle:
Bilanz eines Umbaus
einer
Strassen-Tramstation
zu einer Tramstation
mit Verschwenkung -
Velos in die
Schienen gejagt, mit
Weichen
|
Vor dem
Umbau
|
|
Nach dem
Umbau
|
|
|

|
Anzahl
Trottoireinheiten
total:
|
161
|
Anzahl
Trottoireinheiten
total:
|
283
|
+
75,8%
|
|
|
|
|
ohne
Velowege:
|
259
|
+
39,2%
|
|
|
rechts
|
|
|
|
rechts
|
|
|
|
|
80,5
|
|
|
|
202,5
|
|
|
|
|
|
|
|
|
+
152%
|
|
|
Konfrontationen
(Stufen 0-10)
|
|
|
|
|
|
|
| Trampassagier-Auto |
5
|
|
|
|
|
0
|
Trampassagier-Velo
|
5
|
|
|
|
|
9
|
|
|
Velo-Auto
|
3
|
|
|
|
|
10
|
|
|
Velo-Tramschiene
|
0
|
|
|
|
|
10
|
|
|
für
RollstuhlfahrerInnen
nicht praktikabel
|
10
|
|
|
|
|
0
|
|
|
Konfrontationen
Bilanz:
|
23
|
|
|
|
|
29
|
|
|
|
|
|
|
|
|
|
|
|
|
|
| +
Stop bei Tram |
-
|
|
|
+
Stop bei Tram |
-
|
|
|
|
|
|
|
+
Temporeduktion der
Autos auf
Tramschienen |
+
|
|
|
|
|
|
|
+
Autos jagen Velos
zwischen den
Schienen |
-
|
|
|
|
|
|
|
+
Weichen als
Velokiller |
-
|
6. Umbau
einer
Inseltramhaltestelle:
Velos /
Fahrräder auf
Veloweg /
Fahrradweg
hinter den
Tramhäuschen
hindurch
Dies ist bei
schwachem bis
mittlerem
Fussgängeraufkommen
die beste und
einfachste Lösung.
Beispiel:
Tramhaltestelle
Museum Rietberg,
Zürich.

Umbau einer
Inseltramhaltestelle
zu einer
Kaphaltestelle mit
Veloweg /
Fahrradweg hinter
dem Tramhäuschen
hindurch.
Beispiel: Zürich,
Station Museum
Rietberg
Eintrag
Fussgängerstreifenelemente
auf Veloweg:
6.3.2003
Eintrag der
Mindestabstände:
28.6.2003
|
Alter
Zustand
(Konfrontationen,
Stufen 1-10):
Trampassagier -
Auto: 10:
Trampassagiere
müssen
Strassenfahrbahn
überqueren, um zum
Tram zu gelangen
Trampassagier -
Velo: 8:
Trampassagiere und
Velos konfrontieren
sich auf der
Strassenfahrbahn,
Velos werden durch
Autos gleichzeitig
bedrängt, haben nur
beschränkten
Platz zum
Ausweichen
Velo - Auto: 10:
volle Konfrontation
auf eingeschränkter
Fahrbahn
für
RollstuhlfahrerInnen
kaum praktikabel: 9:
RollstuhlfahrerInnen
müssen die Fahrbahn
überqueren und
werden auf der
Traminseln durch
Bänke oder andere
montierte
Gegenstände
blockiert. |
Umbau:
Verbesserungen und
Verschlechterungen
(Konfrontationen,
Stufen 1-10):
Trampassagier -
Auto: 0: Tram
blockiert Autos vor
der Tramhaltestelle
Trampassagier -
Velo: 3 (bei
Hauptverkehrszeiten):
Trampassagiere
müssen den
Velostreifen auf dem
Trottoir beachten.
Das Risiko von
Konfrontationen
zwischen Velo und
Trampassagieren ist
jedoch relativ
gering wegen
Ausweichmöglichkeiten
für beide Seiten,
ohne dass Stufen
überwunden werden
müssen und ohne dass
motorisierter
Verkehr sich
einmischen würde.
Velos können die
Tramhaltestelle auch
während des
Ein-Aussteigens der
Trampassagiere
vorsichtig passieren
(Belagswechsel
möglich, um schnelle
Velos abzubremsen).
Velo - Auto: 0:
Trennung von
Autofahrspur und
Veloweg durch
Distanz und Stufe
für
RollstuhlfahrerInnen
praktikabel: 0:
stufenloser Zugang
zur Tramstation mit
Trottoirkante
vorhanden
Pluspunkt: kürzere
Fussgängerstreifen,
weil Tram und Autos
dieselbe Fahrspur
benutzen
Pluspunkt: Autos
müssen Tempo
reduzieren, da diese
auf den Schienen
fahren müssen
Bemerkung:
- Bei niedriger bis
mittlerer Anzahl
FussgängerInnen sind
keine
Fussgängerstreifenelemente
auf dem Velostreifen
nötig (Eintrag
30.3.2003),
gegenseitiges
Ausweichen ist immer
möglich
(19.6.2003)..
- bei regelmässig
hohem
Passagieraufkommen
Mindestbreite 8m
(30.3.2003). |
Tabelle:
Bilanz eines
Umbaus einer
Inseltramstation
zu einer
Tramstation mit
Veloweg /
Fahrradweg
hinter dem
Tramhäuschen
durch
|
Vor dem
Umbau
|
|
Nach
dem Umbau
|
|
|

|
Anzahl
Trottoireinheiten
total:
|
281
|
Anzahl
Trottoireinheiten
total:
|
424
|
+
50,9%
|
|
|
|
|
ohne
Velowege / ohne
Radwege:
|
343
|
+
22,1%
|
|
links
|
rechts
|
|
|
links
|
rechts
|
|
|
|
140,5
|
140,5
|
|
|
212
|
212
|
|
+
50,9%
|
|
|
|
|
ohne
Velowege:
|
171,5
|
171,5
|
|
+
2,1%
|
Konfrontationen
(Stufen
0-10)
|
|
|
|
|
|
|
| Trampassagier-Auto |
10
|
|
|
|
|
0
|
Trampassagier-Velo
|
8
|
|
|
|
|
3
|
Velo-Auto
|
10
|
|
|
|
|
0
|
Velo-Tramschiene
|
0
|
|
|
|
|
0
|
|
|
für
RollstuhlfahrerInnen
nicht
praktikabel
|
9
|
|
|
|
|
0
|
|
|
Konfrontationen
Bilanz:
|
37
|
|
|
|
|
3
|
|
|
|
|
|
|
|
|
|
|
|
|
|
+
Stop bei Tram
|
-
|
|
+
Stop bei Tram
|
-
|
|
|
|
|
|
+
kein Stop bei
Tram für Velos
|
+
|
|
|
|
|
|
+
Temporeduktion
der Autos auf
Schienen
|
-
|
7.
Vorschlag
eines Umbaus
der
Tramhaltestelle
Brombacherstrasse:
Teillösung I.
Die Teillösung
I. bezieht sich
darauf, dass nur
eine Seite der
Haltestelle
umgebaut wurde.
Die Haltestelle
Brombacherstrasse
in Basel wurde
aber an der
einen Seite
derart
velofeindlich
umgebaut (Velos
zwischen die
Schienen gejagt,
mit zweizeiliger
Rinne aus roh
gehauenem
Pflasterstein),
so dass der
folgende
Vorschlag
eigentlich
sofort
realisiert
werden könnte:

Vorschlag des
Umbaus der
Tramstation
Brombacherstrasse
mit Veloweg /
Fahrradweg
hinter dem
Tramhäuschen
durch
Eintrag
Fussgängerstreifenelemente
auf Veloweg:
6.3.2003
Eintrag der
Mindestabstände:
28.6.2003
Der Witz ist:
Man müsste gar
nicht viel
machen, um
diesen Vorschlag
zu realisieren.
Man müsste ein
bisschen Farbe
auf das breite
Trottoir
aufpinseln, oder
eine kleine
Rinne
installieren,
und die Bäume,
die dort
platziert
wurden, wo der
Veloweg hin
sollte, kann man
versetzen. Aber
an einer
velofreundlichen
Tramstation ist
das dumme Basler
Baudepartement
bis heute (2006)
NICHT
interessiert, so
lange der Lohn
stimmt...
|
Alter
Zustand
(Konfrontationen,
Stufen 1-10):
Trampassagier -
Auto: 10:
Trampassagiere
müssen
Strassenfahrbahn
überqueren, um
zum Tram zu
gelangen
Trampassagier
- Velo: 8:
Trampassagiere
und Velos
konfrontieren
sich auf der
Strassenfahrbahn,
Velos werden
durch Autos
gleichzeitig
bedrängt, haben
nur beschränkten
Platz zum
Ausweichen
Velo - Auto: 10:
volle
Konfrontation
auf
eingeschränkter
Fahrbahn
für
RollstuhlfahrerInnen
kaum
praktikabel: 9:
RollstuhlfahrerInnen
müssen die
Fahrbahn
überqueren und
werden auf der
Traminseln durch
Bänke oder
andere montierte
Gegenstände
blockiert |
Umbau:
Verbesserungen
und
Verschlechterungen
(Konfrontationen,
Stufen 1-10):
Trampassagier -
Auto:
links: 10:
Trampassagiere
müssen
Strassenfahrbahn
überqueren, um
zum Tram zu
gelangen
rechts: 0: Tram
blockiert Autos
vor der
Tramhaltestelle
Trampassagier -
Velo (bei
Hauptverkehrszeiten):
links: 8:
Trampassagiere
und Velos
konfrontieren
sich auf der
Strassenfahrbahn,
Velos werden
durch Autos
gleichzeitig
bedrängt, haben
nur beschränkten
Platz zum
Ausweichen
rechts: 3:
Trampassagier -
Velo: 3 (bei
Hauptverkehrszeiten):
Trampassagiere
müssen den
Velostreifen auf
dem Trottoir
beachten. Das
Risiko von
Konfrontationen
zwischen Velo
und
Trampassagieren
ist jedoch
relativ gering
wegen
Ausweichmöglichkeiten
für beide
Seiten, ohne
dass Stufen
überwunden
werden müssen
und ohne dass
motorisierter
Verkehr sich
einmischen
würde. Velos
können die
Tramhaltestelle
auch während des
Ein-Aussteigens
der
Trampassagiere
vorsichtig
passieren
(Belagswechsel
möglich, um
schnelle Velos
abzubremsen).
Velo - Auto:
links: 10: volle
Konfrontation
auf
eingeschränkter
Fahrbahn
rechts: 0:
Trennung von
Autofahrspur und
Veloweg durch
Distanz und
Stufe
für
RollstuhlfahrerInnen
praktikabel:
links: 9:
RollstuhlfahrerInnen
müssen die
Fahrbahn
überqueren und
werden auf der
Traminseln durch
Bänke oder
andere montierte
Gegenstände
blockiert
rechts: 0:
stufenloser
Zugang zur
Tramstation mit
Trottoirkante
vorhanden
Pluspunkt:
rechts: Autos
müssen Tempo
reduzieren, da
diese auf den
Schienen fahren
müssen
Bemerkung:
- bei niedriger
bis mittlerer
Anzahl
Fussgänger sind
keine
Fussgängerstreifenelemente
auf dem
Velostreifen
nötig (Eintrag
30.3.2003),
gegenseitiges
Ausweichen
möglich
(19.6.2003)
- bei
regelmässig
hohem
Passagieraufkommen
Mindestbreite 8m
(30.3.2003) |
Tabelle:
Bilanz eines
einseitigen
Umbaus einer
Inseltramstation
zu einer
Kaphaltestelle
mit Veloweg /
Fahrradweg
hinter dem
Tramhäuschen
durch
|
Vor dem
Umbau
|
|
Nach
dem Umbau
|
|
|
|

|
Anzahl
Trottoireinheiten
total:
|
281
|
Anzahl
Trottoireinheiten
total:
|
|
355,5
|
+
26,5%
|
|
|
|
|
ohne
Velowege:
|
|
315
|
+
12,1%
|
|
links
|
rechts
|
|
|
links
|
rechts
|
|
|
|
|
140,5
|
140,5
|
|
|
140
|
215
|
+
53% |
|
|
|
|
|
ohne
Velowege:
|
174,5
|
+
24,2%
|
|
|
|
|
|
|
|
|
|
|
|
|
Konfrontationen
(Stufen
0-10)
|
|
|
|
|
|
|
rechts
|
| Trampassagier-Auto |
10
|
|
|
|
|
|
0
|
Trampassagier-Velo
|
8
|
|
|
|
|
|
3
|
Velo-Auto
|
10
|
|
|
|
|
|
0
|
Velo-Tramschiene
|
0
|
|
|
|
|
|
0
|
|
|
für
RollstuhlfahrerInnen
nicht
praktikabel
|
9
|
|
|
|
|
|
0
|
|
|
Konfrontationen
Bilanz:
|
37
|
|
|
|
|
|
3
|
|
|
|
|
|
|
|
|
|
|
|
|
|
|
+
Stop bei Tram
|
-
|
|
+
Stop bei Tram
|
-
|
|
|
|
|
|
|
|
+
kein Stop bei
Tram für Velos |
+
|
|
|
|
|
|
|
|
+
Temporeduktion
der Autos auf
Schienen
|
+
|
|
|
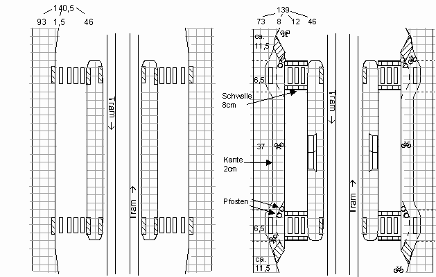
8. Umbau einer
Inseltramhaltestelle
zu einer
Inseltramhaltestelle
mit Veloweg
hinten durch
in 8cm hohen
Kanten:
Teillösung II.
Die Teillösung
II. bezieht
sich auf einen
einseitigen
Veloweg hinter
dem
Tramhäuschen
hindurch in
8cm hohen
Kanten.
Die
Inseltramhaltestelle
Kasernenstrasse
in Basel wurde
rechts
verbreitert
und für den
normalen
Autoverkehr
gesperrt. Über
die Schienen
dürfen nur
Taxi und
Notfallfahrzeuge
fahren. Es
blieb ein
Veloweg hinter
dem
Tramhäuschen
hindurch, der
bis heute in
8cm hohen
Kanten
gehalten wird,
total
unflexibel,
die
VelofahrerInnen
können nicht
ausweichen.
Und manchmal
wird der
Veloweg, der
wie eine
kleine Strasse
aussieht, auch
von
TaxifahrerInnen
benutzt, die
dort
minutenlang
auf Kunden
warten und so
den
Veloverkehr
vorsätzlich
blockieren.
Das
Baudepartement
Basel reagiert
bis heute
nicht. So
lange der Lohn
stimmt, wird
doch nichts
unternommen...

Umbau
einer
Inseltramstation
mit Veloweg /
Fahrradweg
hinter dem
Tramhäuschen
hindurch in
8cm hohen
Kanten. Die
hohen Kanten
machen jedes
Ausweichen
unmöglich und
fördern die
Konfrontation
zum
Trampassagier
und
Fussgänger.
Beispiel:
Tramstation
Kaserne,
Basel.
|
Alter
Zustand
(Konfrontationen,
Stufen 1-10):
Trampassagier
- Auto: 10:
Trampassagiere
müssen
Strassenfahrbahn
überqueren, um
zum Tram zu
gelangen
Trampassagier
- Velo: 8:
Trampassagiere
und Velos
konfrontieren
sich auf der
Strassenfahrbahn,
Velos werden
durch Autos
gleichzeitig
bedrängt,
haben nur
beschränkten
Platz
zum Ausweichen
Velo - Auto:
10: volle
Konfrontation
auf
eingeschränkter
Fahrbahn
für
RollstuhlfahrerInnen
kaum
praktikabel:
9:
RollstuhlfahrerInnen
müssen die
Fahrbahn
überqueren und
werden auf der
Traminseln
durch Bänke
oder andere
montierte
Gegenstände
blockiert.
|
Umbau:
Verbesserungen
und
Verschlechterungen
(Konfrontationen,
Stufen 1-10):
Trampassagier
- Auto:
links: 10:
Trampassagiere
müssen
Strassenfahrbahn
überqueren, um
zum Tram zu
gelangen
rechts: 0:
Tram blockiert
Autos vor der
Tramhaltestelle
Trampassagier
- Velo (bei
Hauptverkehrszeiten):
links: 8:
Trampassagiere
und Velos
konfrontieren
sich auf der
Strassenfahrbahn,
Velos werden
durch Autos
gleichzeitig
bedrängt,
haben nur
beschränkten
Platz zum
Ausweichen
rechts: 4:
Trampassagiere
müssen den
Velostreifen
beachten, der
zwei
zusätzliche
Trottoirkanten
hat. Das
Risiko von
Konfrontationen
ist nicht
gering, weil
für das Velo
keine
Ausweichmöglichkeiten
bestehen.
Velos können
die
Tramhaltestelle
auch während
des
Ein-Aussteigens
der
Trampassagiere
vorsichtig
passieren
(Belagswechsel
möglich).
Velo - Auto:
links: 10:
volle
Konfrontation
auf
eingeschränkter
Fahrbahn
rechts: 0:
Trennung von
Autofahrspur
und Veloweg
durch
Traminsel
für
RollstuhlfahrerInnen
praktikabel:
links und
rechts: 9:
RollstuhlfahrerInnen
müssen
Fahrbahnen
überqueren und
werden auf der
Traminseln
durch Bänke
oder andere
montierte
Gegenstände
blockiert und
durch
Trottoirkanten
eingeschränkt
Pluspunkt:
rechts: Autos
müssen Tempo
reduzieren, da
diese auf den
Schienen
fahren müssen
Bemerkung:
Bei hohem
Passagieraufkommen
ist diese
Anordnung
gefährlich,
weil
VelofahrerInnen
den
FussgängerInnen
nicht
ausweichen
können
(Eintrag
30.3.2003). |
Tabelle:
Bilanz eines
einseitigen
Umbaus einer
Inseltramstation
zu einer
Inseltramstation
mit Veloweg /
Fahrradweg
hinter dem
Tramhäuschen
durch in 8cm
hohen Kanten
|
Vor dem
Umbau
|
|
Nach
dem Umbau
|
|
|
|

|
Anzahl
Trottoireinheiten
total:
|
281
|
Anzahl
Trottoireinheiten
total:
|
|
312
|
+
11,1%
|
|
|
|
|
ohne
Velowege:
|
|
315
|
+
12,1%
|
|
links
|
rechts
|
|
|
links
|
rechts
|
|
|
|
|
140,5
|
140,5
|
|
|
140
|
171,5
|
+
22,1% |
|
|
|
|
|
|
|
|
|
|
|
|
Konfrontationen
(Stufen
0-10)
|
|
|
|
|
|
links
|
rechts
|
| Trampassagier-Auto |
10
|
|
|
|
|
10
|
0
|
Trampassagier-Velo
|
8
|
|
|
|
|
8
|
4
|
Velo-Auto
|
10
|
|
|
|
|
10
|
0
|
Velo-Tramschiene
|
0
|
|
|
|
|
0
|
0
|
|
|
für
RollstuhlfahrerInnen
nicht
praktikabel
|
9
|
|
|
|
|
9
|
9
|
|
|
Konfrontationen
Bilanz:
|
37
|
|
|
|
|
37
|
13
|
|
|
|
|
|
|
|
|
|
|
|
|
|
|
+
kein Stop bei
Tram
|
+
|
|
+
Stop bei Tram
|
-
|
|
|
|
|
|
|
+
kein Stop bei
Tram für Velos
|
+
|
|
|
|
|
|
|
+
Temporeduktion
der Autos auf
den Schienen
|
+
|
|
Tatsache ist, dass
die Taxis sich von
den Tramschienen
nicht vom Rasen
abhalten lassen.
Und ohne
Polizeikontrolle
fahren auch
normale Autos
durch das
Fahrverbot bei der
Tramstation.
9.
Umbau einer
Inseltramhaltestelle
mit viel
Tramverkehr:
Ergänzung mit
erhöhten
Velowegen und
erhöhten
Fussgängerstreifen
Diese Lösung
wurde bis
heute
nirgendwo
realisiert.
Die erhöhten
Fussgängerstreifen
geben dem
Autoverkehr
eine wirksame
Verlangsamung.

Inseltramhaltestelle
ergänzt mit
erhöhten
Velowegen /
Fahrradwegen
und erhöhten
Fussgängerstreifen.
|
Alter
Zustand
(Konfrontationen,
Stufen 1-10):
Trampassagier
- Auto: 10:
Trampassagiere
müssen
Strassenfahrbahn
überqueren, um
zum Tram zu
gelangen
Trampassagier
- Velo: 8:
Trampassagiere
und Velos
konfrontieren
sich auf der
Strassenfahrbahn,
Velos werden
durch Autos
gleichzeitig
bedrängt,
haben nur
beschränkten
Platz zum
Ausweichen
Velo -
Auto: 10:
volle
Konfrontation
auf
eingeschränkter
Fahrbahn
für
RollstuhlfahrerInnen
kaum
praktikabel:
9:
RollstuhlfahrerInnen
müssen die
Fahrbahn
überqueren und
werden auf der
Traminseln
durch Bänke
oder andere
montierte
Gegenstände
blockiert. |
Umbau:
Verbesserungen
und
Verschlechterungen
(Konfrontationen,
Stufen 1-10):
Trampassagier
- Auto: 4:
eingeschränkte
Geschwindigkeit
der Autos
durch zwei
erhöhte
Fussgängerstreifen
Trampassagier
- Velo: 4:
geringe
Konfrontation
durch
Gestaltung der
Köpfe der
Fussgängerstreifen
mit
Fussgängerraum,
Kante von 2cm
trennt Velos
und Fussgänger
über die Länge
des Trottoirs
Velo - Auto:
0: Trennung
von
Autofahrspur
und Veloweg
durch
Velowegkante
für
RollstuhlfahrerInnen
praktikabel:
1: erhöhte
Fussgängerstreifen
und die
Gestaltung der
Köpfe der
Fussgängerstreifen
mit
Fussgängerraum
ermöglichen
relativ
sicheren
Fahrbahnübergang,
zentriert
angebrachte
montierte
Gegenstände
auf den
Traminseln
blockieren die
RollstuhlfahrerInnen
nicht
Pluspunkt:
kürzere
Fussgängerstreifen,
weil Autos und
Velos
getrennte
Fahrbahnen
benutzen
Pluspunkt:
Temporeduktion
der Autos
durch 4 grosse
Schwellen. |
Tabelle:
Bilanz einer
Ergänzung
einer
Inseltramstation
mit erhöhten
Velowegen und
erhöhten
Fussgängerstreifen
|
Vor dem
Umbau
|
|
Nach
dem Umbau
|
|
|
|

|
Anzahl
Trottoireinheiten
total:
|
281
|
Anzahl
Trottoireinheiten
total:
|
|
278
|
-
1,1%
|
|
|
|
|
ohne
Velowege:
|
|
315
|
+
12,1%
|
|
links
|
rechts
|
|
|
links
|
rechts
|
|
|
|
|
140,5
|
140,5
|
|
|
139
|
139
|
|
|
|
|
|
|
|
|
|
|
|
|
|
Konfrontationen
(Stufen
0-10)
|
|
|
|
|
|
|
|
| Trampassagier-Auto |
10
|
|
|
|
|
|
4
|
Trampassagier-Velo
|
8
|
|
|
|
|
|
4
|
Velo-Auto
|
10
|
|
|
|
|
|
0
|
Velo-Tramschiene
|
0
|
|
|
|
|
|
0
|
|
|
für
RollstuhlfahrerInnen
nicht
praktikabel
|
9
|
|
|
|
|
|
1
|
|
|
Konfrontationen
Bilanz:
|
37
|
|
|
|
|
|
9
|
|
|
|
|
|
|
|
|
|
|
|
|
|
|
|
|
|
|
|
+
kein Stop bei
Tram für Velos
|
+
|
|
|
|
|
|
|
+
Temporeduktion
der Autos auf
Schienen
|
+
|
|
10.
Untauglicher
Umbau einer
Inseltramhaltestelle
zu einer
Tramhaltestelle
mit
angehobener
Auto- und
Velofahrbahn
mit
Lichtsignalanlage
(LSA)
Beispiele:
Tramhaltestellen
Riehenring und
Musical
Theater,
Basel, beide
bis heute ohne
Fussgängerstreifen.
Wieso soll man
denn
Fussgängerstreifen
hinmalen, wenn
der Lohn auch
ohne
Fussgängerstreifen
stimmt?

Tramstation
mit
angehobener
Autofahrbahn
und
Velofahrbahn
mit LSA. Die
Autos drängen
die Velos
immer an den
Rand, und die
Autos drohen
immer, von der
Fahrbahn zu
fallen. So
lange der Lohn
stimmt, wird
das dumme
Baudepartement
Basel an
diesen üblen
Zuständen aber
nichts
ändern...
|
Alter
Zustand
(Konfrontationen,
Stufen 1-10):
Trampassagier
- Auto: 10:
Trampassagiere
müssen
Strassenfahrbahn
überqueren, um
zum Tram zu
gelangen
Trampassagier
- Velo: 8:
Trampassagiere
und Velos
konfrontieren
sich auf der
Strassenfahrbahn,
Velos werden
durch Autos
gleichzeitig
bedrängt,
haben nur
beschränkten
Platz
zum Ausweichen
Velo - Auto:
10: volle
Konfrontation
auf
eingeschränkter
Fahrbahn
für
RollstuhlfahrerInnen
kaum
praktikabel:
9:
RollstuhlfahrerInnen
müssen die
Fahrbahn
überqueren und
werden auf der
Traminseln
durch Bänke
oder andere
montierte
Gegenstände
blockiert.
|
Umbau:
Verbesserungen
und
Verschlechterungen
(Konfrontationen,
Stufen 1-10):
Trampassagier
- Auto: 10:
- die
AutofahrerInnen
gewöhnen sich
an die
Fahrbahnerhöhung
und fahren
gleich
schnell, wie
wenn keine
Erhöhung da
wäre
- es gibt
Autos, die
durch Rot
fahren und
noch zwischen
dem haltenden
Tram und den
Trampassagieren
gefährlich
durchrasen,
tödliche
Gefahr für die
Trampassagiere
- die Gefahr,
dass ein Auto
von der
Fahrbahn
abkommt und in
die wartenden
Trampassagiere
gerät, ist
auch bei einer
Kante von 2cm
relativ gross
- aussteigende
Trampassagiere
müssen 4m
laufen, um
aufs richtige
Trottoir zu
gelangen
- aussteigende
Trampassagiere,
die auf die
gegenüberliegende
Strassenseite
wollen,
möchten direkt
die Strasse
überqueren,
und wenn dort
kein
Fussgängerstreifen
vorhanden ist,
bleiben die
Fussgänger in
der
Strassenmitte
mit einer
gegenüberliegenden
Kolonne
konfrontiert,
die Grün hat
- v.a. Kinder
möchten nicht
zuerst 4m
laufen, um
aufs
"richtige"
Trottoir zu
gelangen, um
dann zum
eventuell
angebrachten
Fussgängerstreifen
zu laufen, und
um dann noch
einmal
dieselbe
Breite zu
überqueren, so
landen Kinder
oft gefährlich
zwischen zwei
fahrenden
Kolonnen
Trampassagier
- Velo: 1:
Velo stört
wartende
Trampassagiere
nicht, denn
die Kante von
2cm ist für
die Velos
eindeutig; das
Velo wird
durch die
Schwelle
angehalten,
langsamer zu
fahren
Velos können
auf der
breiten
Fahrbahnfläche
gut den
Trampassagieren
oder Kindern
ausweichen,
die auf der
Fahrbahn
bleiben oder
auf die
Fahrbahn
treten
Velo - Auto:
10:
AutofahrerInnen
haben Angst,
von der Kante
zu fallen und
drängen in die
Mitte der
Fahrbahn,
gefährden
dabei
VelofahrerInnen
für
RollstuhlfahrerInnen
praktikabel:
0: stufenloser
Zugang zur
Tramstation
mit
Trottoirkante
vorhanden
Autos werden
beschädigt:
10:
- die
Schwellen sind
weder markiert
noch
angekündigt
-
AutofahrerInnen,
die die
Station nicht
kennen, sehen
die Schwelle
nicht und
fahren mit nur
einer Seite
schräg auf der
erhöhten
Fahrbahn
-
AutofahrerInnen,
die schräg auf
der Fahrbahn
fahren, wollen
ganz auf die
erhöhte
Fahrbahn
gelangen und
schleifen so
die
Strassenkante
mit ihren
Reifen ab: die
Kante wird von
den Reifen
schwarz
gefärbt
- die Reifen
werden
beschädigt,
die dann bei
hoher
Geschwindigkeit
eventuell
platzen können
und tödliche
Unfälle
verursachen
können
Negativpunkt:
lange
Fussgängerstreifen,
falls
vorhanden
Negativpunkt:
Kosten für die
Installation
von zwei
Lichtsignalanlagen
LSA, die oft
nicht
beachtet
wird
Negativpunkt:
Kosten für den
Stromverbrauch
von zwei
Lichtsignalanlagen
LSA
Negativpunkt:
Stop des
gesamten
Verkehrs bei
Tramhalt. |
Tabelle:
Bilanz des
untauglichen
Umbaus einer
Inseltramhaltestelle
zu einer
Haltestelle
mit
angehobener
Auto-Velo-Fahrbahn
mit LSA
|
Vor dem
Umbau
|
|
Nach
dem Umbau
|
|
|

|
Anzahl
Trottoireinheiten
total:
|
281
|
Anzahl
Trottoireinheiten
total:
|
429
|
+
52,7%
|
|
|
|
|
ohne
Velowege
/ ohne
Radwege:
|
310
|
+
10,3%
|
|
links
|
rechts
|
|
|
links
|
rechts
|
|
|
|
140,5
|
140,5
|
|
|
214,5
|
214,5
|
|
|
|
|
|
|
ohneVelowege
|
155
|
155
|
|
|
Konfrontationen
(Stufen
0-10)
|
|
|
|
|
|
|
| Trampassagier-Auto |
10
|
|
|
|
|
10
|
Trampassagier-Velo
|
8
|
|
|
|
|
1
|
Velo-Auto
|
10
|
|
|
|
|
10
|
|
|
Velo-Tramschiene
|
0
|
|
|
|
|
0
|
|
|
für
RollstuhlfahrerInnen
nicht
praktikabel
|
9
|
|
|
|
|
0
|
|
|
|
|
|
|
Autos
werden
beschädigt
|
10
|
|
|
Konfrontationen
Bilanz:
|
37
|
|
|
|
|
31
|
|
|
|
|
|
|
|
|
|
|
|
|
|
+
kein Stop bei
Tram
|
+
|
|
+
Stop bei Tram
|
-
|
|
|
|
|
|
+
lange
Fussgängerstreifen
(falls
vorhanden)
|
-
|
|
|
|
|
|
+
Kosten der
Installation
der LSA
|
-
|
|
|
|
|
|
+
Stromverbrauch
durch LSA
|
-
|
11.
Untauglicher
Umbau:
Inseltramhaltestelle
wird einseitig
zu
Kaphaltestelle
- die Velos
werden in die
Tramschienen
gejagt
z.B.
Haltestelle
Brombacherstrasse
in Basel, so
typisch für
das dumme
Baudepartement
und die
IG-Velo Basel,
die immer
gerne zwischen
den Schienen
herumrast. Wo
sollen dann
langsame und
mittlere
VelofahrerInnen
fahren?

Umbau einer
Tramstation
einseitig in
eine
Kaphaltestelle,
die Velos /
Fahrräder
werden in die
Schienen
gejagt.
|
Eintrag
der Bäume:
28.6.2003
Alter Zustand
(Konfrontationen,
Stufen 1-10):
Trampassagier
- Auto: 10:
Trampassagiere
müssen
Strassenfahrbahn
überqueren, um
zum Tram zu
gelangen
Trampassagier
- Velo: 8:
Trampassagiere
und Velos
konfrontieren
sich auf der
Strassenfahrbahn,
Velos werden
durch Autos
gleichzeitig
bedrängt,
haben nur
beschränkten
Platz zum
Ausweichen
Velo - Auto:
10: volle
Konfrontation
auf
eingeschränkter
Fahrbahn
für
RollstuhlfahrerInnen
kaum
praktikabel:
9:
RollstuhlfahrerInnen
müssen die
Fahrbahn
überqueren und
werden auf der
Traminseln
durch Bänke
oder andere
montierte
Gegenstände
blockiert |
Umbau:
Verbesserungen
und
Verschlechterungen
(Konfrontationen,
Stufen 1-10):
Trampassagier
- Auto:
links: 10:
Trampassagiere
müssen
Strassenfahrbahn
überqueren, um
zum Tram zu
gelangen
rechts: 0:
Autos müssen
über die
Tramschienen
fahren
Trampassagier
- Velo:
links: 8:
Trampassagiere
und Velos
konfrontieren
sich auf der
Strassenfahrbahn,
Velos werden
durch Autos
gleichzeitig
bedrängt,
haben nur
beschränkten
Platz zum
Ausweichen
rechts: 9:
falls ein
Fussgänger auf
die Fahrbahn
tritt, ist der
Velofahrer
durch die
Tramschienen
extrem
gefährdet
Velo - Auto:
links und
rechts 10:
volle
Konfrontation
auf
eingeschränkter
Fahrbahn,
rechts
zusätzlich
noch mit
Gefährdung
durch
Tramschienen
Velo -
Tramschiene:
links: 0
rechts: 9:
falls nur eine
Kleinigkeit
passiert, ist
sind die
VelofahrerInnen
durch die
Tramschienen
extrem
gefährdet.
für
RollstuhlfahrerInnen
praktikabel:
links: 9:
RollstuhlfahrerInnen
müssen die
Fahrbahn
überqueren und
werden auf der
Traminseln
durch Bänke
oder andere
montierte
Gegenstände
blockiert
rechts: 0:
stufenloser
Zugang zur
Tramstation
mit
Trottoirkante
vorhanden
Temporeduktion
von Autos auf
Schienen:
links: -
rechts: +
kürzere
Fussgängerstreifen:
links: -
rechts: +:
weil Tram,
Autos und
Velos dieselbe
Fahrspur
benutzen
Stop bei
Tram:
links: kein
rechts: Stop
des gesamten
Verkehrs |
Tabelle:
Bilanz des
einseitigen,
untauglichen
Umbaus einer
Inseltramhaltestelle
zu einer
Kaphaltestelle
- Velos werden
in die
Tramschienen
gejagt
|
Vor dem
Umbau
|
|
Nach
dem Umbau
|
|
|

|
Anzahl
Trottoireinheiten
total:
|
281
|
Anzahl
Trottoireinheiten
total:
|
355
|
+
26,5%
|
|
|
|
|
ohne
Velowege:
|
315
|
+
12,1%
|
|
links
|
rechts
|
|
|
links
|
rechts
|
|
|
|
140,5
|
140,5
|
|
|
140,5
|
215
|
|
|
|
|
|
|
|
|
|
|
|
Konfrontationen
(Stufen
0-10)
|
|
|
|
|
links
|
rechts
|
| Trampassagier-Auto |
10
|
|
|
|
10
|
0
|
Trampassagier-Velo
|
8
|
|
|
|
8
|
9
|
Velo-Auto
|
10
|
|
|
|
10
|
10
|
Velo-Tramschiene
|
0
|
|
|
|
0
|
9
|
für
RollstuhlfahrerInnen
nicht
praktikabel
|
9
|
|
|
|
nein:9
|
ja:
0
|
|
|
Konfrontationen
Bilanz:
|
37
|
|
|
|
37
|
28
|
|
|
|
|
|
|
|
|
|
|
|
|
|
|
|
|
|
|
+
Stop bei Tram
|
-
|
|
|
|
|
|
+
Temporeduktion
der Autos auf
den
Tramschienen
|
+
|
|
|
|
|
|
+
Autos jagen
Velos zwischen
den Schienen
|
-
|
|
|
|
|
|
+
Bäume haben
mehr Platz als
Velos /
Fahrräder
|
-
|
12.
Untauglicher
Umbau:
Einseitiger
Umbau einer
Inseltramhaltestelle
in eine
Kaphaltestelle
in einer Kurve
- Velos in die
Tramschienen
gejagt
Beispiel:
Tramhaltestelle
St.Johann-Tor,
Basel

Umbau einer
Inseltramstation
in eine
Kaphaltestelle
in einer
Kurve, die
Velos /
Fahrräder
werden in die
Tramschienen
gejagt.
Beispiel:
Basel, Station
St.Johann-Tor.
|
Alter
Zustand
(Konfrontationen,
Stufen 1-10):
Trampassagier
- Auto: 10:
Trampassagiere
müssen
Strassenfahrbahn
überqueren, um
zum Tram zu
gelangen
Trampassagier
- Velo: 8:
Trampassagiere
und Velos
konfrontieren
sich auf der
Strassenfahrbahn,
Velos werden
durch Autos
gleichzeitig
bedrängt,
haben nur
beschränkten
Platz zum
Ausweichen
Velo - Auto:
10: volle
Konfrontation
auf
eingeschränkter
Fahrbahn
für
RollstuhlfahrerInnen
kaum
praktikabel:
9:
RollstuhlfahrerInnen
müssen die
Fahrbahn
überqueren und
werden auf der
Traminseln
durch Bänke
oder andere
montierte
Gegenstände
blockiert. |
Umbau:
Verbesserungen
und
Verschlechterungen
(Konfrontationen,
Stufen 1-10):
Trampassagier
- Auto:
rechts: 0:
Autos müssen
über die
Tramschienen
fahren
Trampassagier
- Velo:
rechts: 9:
falls ein
Fussgänger auf
die Fahrbahn
tritt, ist der
Velofahrer
durch die
Tramschienen
extrem
gefährdet; die
Gefahr erhöht
sich, weil die
Tramhaltestelle
in einer Kurve
liegt.
Velo - Auto:
rechts 10:
volle
Konfrontation
auf
eingeschränkter
Fahrbahn,
rechts
zusätzlich
noch mit
Gefährdung
durch
Tramschienen.
Die Gefahr
erhöht sich,
weil die
Tramhaltestelle
in einer Kurve
liegt.
Velo -
Tramschiene:
rechts 10:
falls nur eine
Kleinigkeit
passiert,
werden die
VelofahrerInnen
durch die
Tramschienen
extrem
gefährdet; die
Gefahr erhöht
sich, weil die
Tramhaltestelle
in einer Kurve
liegt.
für
RollstuhlfahrerInnen
praktikabel:
rechts: 0:
stufenloser
Zugang zur
Tramstation
mit
Trottoirkante
vorhanden
Temporeduktion
von Autos auf
Schienen:
rechts: +
Stop bei Tram:
rechts: - :
Stop des
gesamten
Verkehrs bei
Tram. |
Tabelle:
Bilanz des
einseitigen
Umbaus einer
Inseltramhaltestelle
in eine
Kaphaltestelle
in Kurve -
Velos in die
Tramschienen
gejagt
|
Vor dem
Umbau
|
|
Nach
dem Umbau
|
|
|

|
Anzahl
Trottoireinheiten
rechts:
|
178
|
Anzahl
Trottoireinheiten
rechts:
|
353,5
|
+
99%
|
|
|
|
|
|
|
|
|
|
Konfrontationen
(Stufen
0-10)
|
|
|
|
|
|
|
| Trampassagier-Auto |
10
|
|
|
|
|
0
|
Trampassagier-Velo
|
8
|
|
|
|
|
9
|
Velo-Auto
|
10
|
|
|
|
|
10
|
Velo-Tramschiene
|
0
|
|
|
|
|
10
|
für
RollstuhlfahrerInnen
nicht
praktikabel
|
9
|
|
|
|
|
0
|
|
|
Konfrontationen
Bilanz:
|
37
|
|
|
|
|
29
|
|
|
|
|
|
|
|
|
|
|
|
|
|
+
kein Stop bei
Tram
|
+
|
|
+
Stop bei Tram
|
-
|
|
|
|
|
|
|
+
Temporeduktion
der Autos auf
Schienen
|
+
|
|
|
|
|
|
|
+
Autos jagen
Velos zwischen
den Schienen
|
-
|
|
Das
Baudepartement
Basel kam dann
sogar auf die
Idee, den
neuen
Fussgängerraum
bei der
Tramstation
mit neuen
Blumenbeeten
einzuengen
bzw. zu
"verschönern".
Velofeindlicher
kann man eine
Verkehrspolitik
wirklich nicht
mehr
gestalten.
Aber so lange
der Lohn in
Basel stimmt,
wird an der
velofeindlichen
Politik in
Basel in
Sachen
Tramstationen
nichts
geändert...
2.Teil
Tramstationen
im Umbau zu
einer
Fussgängerzone
F1.
Umbau
einer
Tramhaltestelle
in einer
Strasse, die
Fussgängerzone
wird: Trams
nach links
verschoben,
alles
Trottoirniveau,
Zweirichtungsveloweg
hinter der
Tramstation
hindurch (in
Deutschland
Realität)
Dieser
Vorschlag
wurde dem
Baudepartement
Basel vor dem
Umbau der
Clarastrasse
gemacht. Das
dumme
Baudepartement
und die dumme
IG-Velo
glaubten nicht
an die
Zweckmässigkeit
eines
Zweirichtungsvelowegs,
wie er in der
Welt schon oft
existiert.

Vorschlag
eines Umbaus
einer
Tramstation,
die nachher
zur
Fussgängerzone
wird,
mit
Zweirichtungs-Veloweg
an einer Seite
hinter dem
Tramhäuschen
hindurch.
|
Alter
Zustand
(Konfrontationen,
Stufen 1-10):
Trampassagier
- Auto: 5:
Auto kann sich
zwischen Tram
und Trottoir
drängen
Trampassagier
- Velo: 5:
Velo kann sich
zwischen Tram
und Trottoir
drängen
Velo - Auto:
3: genug Platz
für Abstand
von
Trottoirkante
und
Überholmanöver,
deshalb nur
geringes
Risiko
für
RollstuhlfahrerInnen
nicht
praktikabel:
10: keine
Trottoirkante
für den
Einstieg ins
Tram da
Negativpunkt:
lange
Fussgängerstreifen,
falls
überhaupt
vorhanden
Negativpunkt:
Stop des
ganzen
Verkehrs bei
Tram. |
Umbau:
Verbesserungen
und
Verschlechterungen
(Konfrontationen,
Stufen 1-10):
Trampassagier
- Auto: 0:
keine Autos
mehr vorhanden
Trampassagier
- Velo:
links: 0:
keine
VelofahrerInnen
vorhanden
rechts: 2:
breiter
Zweirichtungs-Veloweg
vorhanden, mit
Tramhäuschen
und eventuell
mit Bänken,
Blumenkübel
oder Kübeln
sichtbar
abgegrenzt;
Pfosten leiten
die
VelofahrerInnen,
wo sie
durchzufahren
haben; Belag
hält
VelofahrerInnen
zum langsamer
fahren an,
darf aber kein
"Holperbelag"
sein;
eventuell
spezielle
Belagfarbe,
dann sind
keine
Längsmarkierungen
nötig; Platz
zum Ausweichen
ist genug da,
das
Unfallrisiko
Velo -
Fussgänger ist
sehr klein.
Der
Gegenverkehr
der Velos
zwingt diese
zum langsam
fahren.
Velo - Auto:
0: keine Autos
mehr vorhanden
für
RollstuhlfahrerInnen
praktikabel:
0: stufenloser
Zugang zur
Tramhaltestelle
mit
Trottoirkante
Pluspunkt:
Velos
zirkulieren
unabhängig vom
Tramverkehr. |
Tabelle:
Bilanz des
Umbaus einer
Inseltramhaltestelle
zu einer
Haltestelle in
Fussgängerzone
mit
Zweirichtungsveloweg
an einer Seite
hinter dem
Tramhäuschen
hindurch
|
Vor dem
Umbau
|
|
Nach
dem Umbau
|
|
|

|
Anzahl
Trottoireinheiten
total:
|
186
|
Anzahl
Trottoireinheiten
total:
|
445,5
|
+
140%
|
|
|
|
|
ohne
Velowege
/ ohne
Radwege:
|
352,5
|
+
101%
|
|
links
|
rechts
|
|
|
links
|
rechts
|
|
|
|
93
|
93
|
|
|
129
(+ 35%)
|
316,5
(+240%)
|
|
|
|
|
|
|
ohne
Velowege
|
223,5
(+140%)
|
|
|
Konfrontationen
(Stufen
0-10)
|
|
|
|
|
links
|
rechts
|
| Trampassagier-Auto |
5
|
|
|
|
0
|
0
|
Trampassagier-Velo
|
5
|
|
|
|
0
|
2
|
|
|
Velo-Auto
|
3
|
|
|
|
0
|
0
|
|
|
Velo-Tramschiene
|
0
|
|
|
|
0
|
0
|
|
|
für
RollstuhlfahrerInnen
nicht
praktikabel
|
10
|
|
|
|
0
|
0
|
|
|
|
|
|
|
|
Autos
werden
beschädigt
|
10
|
|
|
Konfrontationen
Bilanz:
|
37
|
|
|
|
0
|
2
|
|
|
|
|
|
|
|
|
|
|
|
|
|
|
|
|
+
Velos
zirkulieren
unabhängig vom
Tramverkehr
|
+
|
|
F2.
Umbau einer
Tramhaltestelle
in einer
Strasse, die
Fussgängerzone
wird: Keine
Trottoirs,
angehobene
Haltestelle,
Zweirichtungsveloweg
hinter der
Tramstation
hindurch
(Vorschlag
Palomino)
Diese Version
der Gestaltung
der
Fussgängerzone
ist noch nicht
verwirklicht.
Durch die
Erhöhung des
Wartebereichs
gehen nur
diejenigen
Personen in
den
Wartebereich
der
Tramstation,
die wirklich
müssen.

Tramstation in
Fussgängerzone
mit
angehobenem
Niveau, mit
Zweirichtungs-Veloweg
an einer Seite
hinter dem
Tramhäuschen
hindurch.
|
Alter
Zustand
(Konfrontationen,
Stufen 1-10):
Trampassagier
- Auto: 5:
Auto kann sich
zwischen Tram
und Trottoir
drängen
Trampassagier
- Velo: 5:
Velo kann sich
zwischen Tram
und Trottoir
drängen
Velo - Auto:
3: genug Platz
für Abstand
von
Trottoirkante
und
Überholmanöver,
deshalb nur
geringes
Risiko
für
RollstuhlfahrerInnen
nicht
praktikabel:
10: keine
Trottoirkante
für den
Einstieg ins
Tram da
Negativpunkt:
lange
Fussgängerstreifen,
falls
überhaupt
vorhanden
Negativpunkt:
Stop des
ganzen
Verkehrs bei
Tram |
Umbau:
Verbesserungen
und
Verschlechterungen
(Konfrontationen,
Stufen 1-10):
Trampassagier
- Auto: 0:
keine Autos
mehr vorhanden
Trampassagier
- Velo:
links: 0:
keine
VelofahrerInnen
vorhanden
rechts: 2:
breiter
Zweirichtungs-Veloweg
vorhanden, mit
Tramhäuschen
und eventuell
mit Bänken,
Blumenkübel
oder Kübeln
sichtbar
abgegrenzt;
Pfosten leiten
die
VelofahrerInnen,
wo sie
durchzufahren
haben; Belag
hält
VelofahrerInnen
zum langsamer
fahren an,
darf aber kein
"Holperbelag"
sein;
eventuell
spezielle
Belagfarbe,
dann sind
keine
Längsmarkierungen
nötig; Platz
zum Ausweichen
ist genug da,
das
Unfallrisiko
Velo -
Fussgänger ist
sehr klein.
Der
Gegenverkehr
der Velos
zwingt diese
zum langsam
fahren.
Velo - Auto:
0: keine Autos
mehr vorhanden
für
RollstuhlfahrerInnen
praktikabel:
links: 0:
breite
Schwellen als
Zugang zur
Haltestelle
mit
Trottoirkante
rechts: 2:
Schwellen als
Zugang zur
Haltestelle
mit
Trottoirkante
sind unbequem,
aber dafür ist
die ganze
Fussgängerzone
ohne Stufen.
Pluspunkt:
Velos
zirkulieren
unabhängig vom
Tramverkehr.
Mega-Pluspunkt:
Die stufenlose
Fussgängerzone
ausserhalb der
Tramhaltestellen
ermöglicht für
die
FussgängerInnen,
für
Anlieferverkehr
und
VelofahrerInnen,
aber auch für
Festveranstaltungen
oder Umzüge
maximale
Flexibilität. |
g
Tabelle:
Bilanz des
Umbaus einer
Inseltramhaltestelle
zu einer
Haltestelle in
Fussgängerzone
mit
angehobenem
Wartebereich
und
Zweirichtungsveloweg
an einer Seite
hinter dem
Tramhäuschen
hindurch
|
Vor dem
Umbau
|
|
Nach
dem Umbau
|
|
|

|
Anzahl
Trottoireinheiten
total:
|
186
|
Anzahl
Trottoireinheiten
total:
|
454
|
+
144%
|
|
|
|
|
ohne
Velowege /
ohne Radwege:
|
361
|
+
94%
|
|
links
|
rechts
|
|
|
links
|
rechts
|
|
|
|
93
|
93
|
|
|
134
(+44%)
|
320
(+244%)
|
|
|
|
|
|
|
ohne
Velowege:
|
227
(+144%)
|
|
|
Konfrontationen
(Stufen
0-10)
|
|
|
|
|
links
|
rechts
|
| Trampassagier-Auto |
5
|
|
|
|
0
|
0
|
Trampassagier-Velo
|
5
|
|
|
|
0
|
2
|
|
|
Velo-Auto
|
3
|
|
|
|
0
|
0
|
|
|
Velo-Tramschiene
|
0
|
|
|
|
0
|
0
|
|
|
für
RollstuhlfahrerInnen
nicht
praktikabel
|
10
|
|
|
|
0
|
2
|
|
|
Konfrontationen
Bilanz:
|
23
|
|
|
|
0
|
4
|
|
|
|
|
|
|
|
|
|
|
|
|
|
|
|
|
|
|
+
Velos
zirkulieren
unabhängig vom
Tramverkehr
|
+
|
F3.
Umbau einer
Tramhaltestelle
in einer
Strasse, die
Fussgängerzone
wird: Alles
Trottoir, zwei
Velowege
hinter den
zwei
Tramhäuschen
hinten durch
(in
Deutschland
Realität)
Auch dieser
Vorschlag
wurde vor
dem
Umbau der
Clarastrasse
beim dummen
Tiefbauamt
Basel
eingegeben.
Das dumme
Tiefbauamt und
die dumme
IG-Velo
lehnten den
Vorschlag ab,
mit dem
Argument, es
würden dann
den
VelofahrerInnen
Fussgänger im
Weg stehen. So
lange der Lohn
stimmt, wird
sich in Basel
auch nichts an
der
velofeindlichen
Praxis
ändern...

Tramhaltestelle
in
Fussgängerzone
mit zwei
Velowegen
hinter den
Tramhäuschen
hindurch.
|
Alter
Zustand
(Konfrontationen,
Stufen 1-10):
Trampassagier
- Auto: 5:
Auto kann sich
zwischen Tram
und Trottoir
drängen
Trampassagier
- Velo: 5:
Velo kann sich
zwischen Tram
und Trottoir
drängen
Velo - Auto:
3: genug Platz
für Abstand
von
Trottoirkante
und
Überholmanöver,
deshalb nur
geringes
Risiko
für
RollstuhlfahrerInnen
nicht
praktikabel:
10: keine
Trottoirkante
für den
Einstieg ins
Tram da
Negativpunkt:
lange
Fussgängerstreifen,
falls
überhaupt
vorhanden
Negativpunkt:
Stop des
ganzen
Verkehrs bei
Tram. |
Umbau:
Verbesserungen
und
Verschlechterungen
(Konfrontationen,
Stufen 1-10):
Trampassagier
- Auto: 0:
keine Autos
mehr vorhanden
Trampassagier
- Velo: 2:
breite
Velowege
vorhanden, mit
Tramhäuschen
und eventuell
mit Bänken,
Blumenkübel
oder Kübeln
sichtbar
abgegrenzt;
Pfosten leiten
die
VelofahrerInnen,
wo sie
durchzufahren
haben; Belag
hält
VelofahrerInnen
zum langsamer
fahren an,
darf aber kein
"Holperbelag"
sein;
eventuell
spezielle
Belagfarbe,
dann sind
keine
Längsmarkierungen
nötig; Platz
zum Ausweichen
ist genug da,
das
Unfallrisiko
Velo -
Fussgänger ist
sehr klein.
Velo - Auto:
0: keine Autos
mehr vorhanden
für
RollstuhlfahrerInnen
praktikabel:
0: stufenloser
Zugang zur
Tramhaltestelle
mit
Trottoirkante
Pluspunkt:
Velos
zirkulieren
unabhängig vom
Tramverkehr.
|
Tabelle:
Bilanz des
Umbaus einer
Tramhaltestelle
in eine
Fussgängerzone
mit zwei
Velowegen
hinter den
Tramhäuschen
hindurch
|
Vor dem
Umbau
|
|
Nach
dem Umbau
|
|
|

|
Anzahl
Trottoireinheiten
total:
|
186
|
Anzahl
Trottoireinheiten
total:
|
402
|
+
116%
|
|
|
|
|
ohne
Velowege:
|
298
|
+
60%
|
|
links
|
rechts
|
|
|
links
|
rechts
|
|
|
|
93
|
93
|
|
|
201
|
201
|
|
+
116%
|
|
|
|
|
ohne
Velowege:
|
149
|
149
|
|
+
60%
|
|
|
|
|
|
|
|
|
|
Konfrontationen
(Stufen
0-10)
|
|
|
|
|
|
|
| Trampassagier-Auto |
5
|
|
|
|
|
0
|
Trampassagier-Velo
|
5
|
|
|
|
|
2
|
|
|
Velo-Auto
|
3
|
|
|
|
|
0
|
|
|
Velo-Tramschiene
|
0
|
|
|
|
|
0
|
|
|
für
RollstuhlfahrerInnen
nicht
praktikabel
|
10
|
|
|
|
|
0
|
|
|
Konfrontationen
Bilanz:
|
37
|
|
|
|
|
2
|
|
|
|
|
|
|
|
|
|
|
|
|
|
|
|
|
+
Velos
zirkulieren
unabhängig vom
Tramverkehr
|
+
|
F3+.
Umbau einer
Tramhaltestelle
in einer
Strasse, die
Fussgängerzone
wird: Alles
Trottoir,
Anhebung des
Passagierwarteraums
und Absenkung
des
Tramniveaus
gleichzeitig,
zwei Velowege
hinter den
zwei
Tramhäuschen
hinten durch
(Vorschlag
Palomino)
Dieser
Vorschlag
wurde
nachträglich
entworfen. Die
Schwelle für
die Passagiere
auf ein
erhöhtes
Niveau wird
erheblich
gemildert,
denn das Tram
senkt sein
Niveau im
Haltestellenbereich.

Tramstation in
Fussgängerzone
mit Anhebung
des Warteraums
und
gleichzeitiger
Absenkung des
Tramniveaus,
mit zwei
Velowegen
hinter den
Tramhäuschen
hindurch.
|
Alter
Zustand
(Konfrontationen,
Stufen 1-10):
Trampassagier
- Auto: 5:
Auto kann sich
zwischen Tram
und Trottoir
drängen
Trampassagier
- Velo: 5:
Velo kann sich
zwischen Tram
und Trottoir
drängen
Velo - Auto:
3: genug Platz
für Abstand
von
Trottoirkante
und
Überholmanöver,
deshalb nur
geringes
Risiko
für
RollstuhlfahrerInnen
nicht
praktikabel:
10: keine
Trottoirkante
für den
Einstieg ins
Tram da
Negativpunkt:
lange
Fussgängerstreifen,
falls
überhaupt
vorhanden
Negativpunkt:
Stop des
ganzen
Verkehrs bei
Tram. |
Umbau:
Verbesserungen
und
Verschlechterungen
(Konfrontationen,
Stufen 1-10):
Trampassagier
- Auto: 0:
keine Autos
mehr vorhanden
Trampassagier
- Velo: 2:
breite
Velowege
vorhanden, mit
Tramhäuschen
und eventuell
mit Bänken,
Blumenkübel
oder Kübeln
sichtbar
abgegrenzt;
Pfosten leiten
die
VelofahrerInnen,
wo sie
durchzufahren
haben; Belag
hält
VelofahrerInnen
zum langsamer
fahren an,
darf aber kein
"Holperbelag"
sein;
eventuell
spezielle
Belagfarbe,
dann sind
keine
Längsmarkierungen
nötig; Platz
zum Ausweichen
ist genug da,
das
Unfallrisiko
Velo -
Fussgänger ist
sehr klein.
Velo - Auto:
0: keine Autos
mehr vorhanden
für
RollstuhlfahrerInnen
praktikabel:
0: stufenloser
Zugang zur
Tramhaltestelle
mit
Trottoirkante
Pluspunkt:
stufenlose und
schwellenlose
Höhenniveauverschiebungen
zwischen
Tramtrasse und
Fussgänger-/Velotrasse
Pluspunkt:
Velos
zirkulieren
unabhängig vom
Tramverkehr.
Mega-Pluspunkt:
Die stufenlose
Fussgängerzone
ausserhalb der
Tramhaltestellen
ermöglicht für
die
FussgängerInnen,
für
Anlieferverkehr
und
VelofahrerInnen,
aber auch für
Festveranstaltungen
oder Umzüge
maximale
Flexibilität. |
Tabelle:
Umbau einer
Tramhaltestelle
für eine
Fussgängerzone
mit
angehobenem
Niveau des
Passagier-Warteraums
und
abgesenktem
Tramniveau,
mit zwei
Velowegen /
Fahrradwegen
hinter den
Tramhäuschen
hindurch
|
Vor dem
Umbau
|
|
Nach
dem Umbau
|
|
|
|

|
Anzahl
Trottoireinheiten
total:
|
186
|
Anzahl
Trottoireinheiten
total:
|
|
438
|
+
135%
|
|
|
|
|
ohne
Velowege
/ ohne
Radwege:
|
|
334
|
+
80%
|
|
links
|
rechts
|
|
|
links
|
rechts
|
|
|
|
|
93
|
93
|
|
|
219
|
219
|
|
|
+
135% |
|
|
|
|
ohneVelowege
|
167
|
167
|
|
|
+
80% |
|
|
|
|
|
|
|
|
|
|
Konfrontationen
(Stufen
0-10)
|
|
|
|
|
|
|
|
| Trampassagier-Auto |
5
|
|
|
|
|
|
0
|
Trampassagier-Velo
|
5
|
|
|
|
|
|
2
|
|
|
Velo-Auto
|
3
|
|
|
|
|
|
0
|
|
|
Velo-Tramschiene
|
0
|
|
|
|
|
|
0
|
|
|
für
RollstuhlfahrerInnen
nicht
praktikabel
|
10
|
|
|
|
|
|
0
|
|
|
Konfrontationen
Bilanz:
|
23
|
|
|
|
|
|
2
|
|
|
|
|
|
|
|
|
|
|
|
|
|
|
|
|
|
+
Velos
zirkulieren
unabhängig vom
Tramverkehr
|
+
|
F4.
Umbau einer
Tramhaltestelle
in einer
Strasse, die
Fussgängerzone
wird:
Tramtrasse im
Zentrum, Velos
mit erhöhten
Velowegen vor
den
Trampassagieren
hindurch
(Vorschlag
Palomino)
Dieser
Vorschlag ist
die logische
Kombination
für enge
Fussgängerzonen:
Die Velos
fahren auf
einer
Zickzacklinie
vor den
wartenden
Trampassagieren
ungestört
hindurch. Stop
bei Tram. Das
dumme Basler
Tiefbauamt und
die dumme
IG-Velo
verweigern bis
heute (2006)
die
Realisierung
einer solchen
praktischen
Tramstation
mit
Velodurchlass
trotz einer
gleichlautenden
Petition von
2002. So lange
der Lohn
stimmt, muss
man doch
nichts
ändern...

Tramstation in
Fussgängerzone,
angehobene
Velowege auf
Zickzacklinie
führen
ungestört vor
den
Trampassagieren
hindurch. Stop
bei Tram.
Eintrag
der
Zickzacklinie:
6.3.2003.
|
Alter
Zustand
(Konfrontationen,
Stufen 1-10):
Trampassagier
- Auto: 5:
Auto kann sich
zwischen Tram
und Trottoir
drängen
Trampassagier
- Velo: 5:
Velo kann sich
zwischen Tram
und Trottoir
drängen
Velo - Auto:
3: genug Platz
für Abstand
von
Trottoirkante
und
Überholmanöver,
deshalb nur
geringes
Risiko
für
RollstuhlfahrerInnen
nicht
praktikabel:
10: keine
Trottoirkante
für den
Einstieg ins
Tram da
Negativpunkt:
lange
Fussgängerstreifen,
falls
überhaupt
vorhanden
Negativpunkt:
Stop des
ganzen
Verkehrs bei
Tram |
Umbau:
Verbesserungen
und
Verschlechterungen
(Konfrontationen,
Stufen 1-10):
Trampassagier
- Auto: 0:
keine Autos
mehr vorhanden
Trampassagier
- Velo: 1:
Velos
zirkulieren am
äussersten
Rand der
Fussgängerzone
zum Tramgleis
hin. Schwellen
bremsen
VelofahrerInnen
ab.
Velo - Auto:
0: keine Autos
mehr vorhanden
für
RollstuhlfahrerInnen
praktikabel:
0: stufenloser
Zugang zur
Tramhaltestelle
mit
Trottoirkante
Negativpunkt:
Stop des
gesamten
Verkehrs bei
Tram. |
Tabelle:
Umbau einer
Tramhaltestelle
in einer
Fussgängerzone,
angehobene
Velowege
führen vor den
wartenden
Trampassagieren
hindurch. Stop
bei Tram
|
Vor dem
Umbau
|
|
Nach
dem Umbau
|
|
|

|
Anzahl
Trottoireinheiten
total:
|
186
|
Anzahl
Trottoireinheiten
total:
|
412
|
+
122%
|
|
|
|
|
ohne
Velowege
/ ohne
Radwege:
|
349
|
+
88%
|
|
links
|
rechts
|
|
|
links
|
rechts
|
|
|
|
93
|
93
|
|
|
206
|
206
|
|
+
122% |
|
|
|
|
ohne
Velowege:
|
174,5
|
174,5
|
|
+
88% |
|
|
|
|
|
|
|
|
|
Konfrontationen
(Stufen
0-10)
|
|
|
|
|
|
|
| Trampassagier-Auto |
5
|
|
|
|
|
0
|
Trampassagier-Velo
|
5
|
|
|
|
|
2
|
|
|
Velo-Auto
|
3
|
|
|
|
|
0
|
|
|
Velo-Tramschiene
|
0
|
|
|
|
|
0
|
|
|
für
RollstuhlfahrerInnen
nicht
praktikabel
|
10
|
|
|
|
|
0
|
|
|
Konfrontationen
Bilanz:
|
23
|
|
|
|
|
2
|
|
|
|
|
|
|
|
|
|
|
|
|
|
|
|
|
|
|
+
Stop bei Tram
|
-
|
|
|
F5.
Untauglicher
Umbau einer
Tramhaltestelle
in einer
Strasse, die
Fussgängerzone
wird:
Tramtrasse im
Zentrum, Velos
werden in die
Tramschienen
gejagt,
Clarastrasse,
Basel
Das dumme,
velofeindliche
Baudepartement
der Stadt
Basel
realisierte in
der
Clarastrasse
die
schlechtestmögliche
Variante zum
Umbau der
Tramstation
und jagt dort
bis heute die
VelofahrerInnen
zwischen die
Tramschienen.
Gleichzeitig
werden 3m
Breite des
Trottoirs der
Haltestelle
von einem
Ausseinausschank
eines
Restaurants in
Anspruch
genommen. So
lange der Lohn
stimmt, muss
man daran doch
nichts ändern.

Umbau einer
Tramstation in
einer Strasse,
die
Fussgängerzone
wird: Die
Tramschienen
werden an den
Trottoirrand
der
Kaphaltestelle
verschwenkt,
und die Velos
/ Fahrräder
werden in die
Tramschienen
gejagt.
|
Alter
Zustand
(Konfrontationen,
Stufen 1-10):
Trampassagier
- Auto: 5:
Auto kann sich
zwischen Tram
und Trottoir
drängen
Trampassagier
- Velo: 5:
Velo kann sich
zwischen Tram
und Trottoir
drängen
Velo - Auto:
3: genug Platz
für Abstand
von
Trottoirkante
und
Überholmanöver,
deshalb nur
geringes
Risiko
für
RollstuhlfahrerInnen
nicht
praktikabel:
10: keine
Trottoirkante
für den
Einstieg ins
Tram da
Negativpunkt:
lange
Fussgängerstreifen,
falls
überhaupt
vorhanden
Negativpunkt:
Stop des
ganzen
Verkehrs bei
Tram |
Umbau:
Verbesserungen
und
Verschlechterungen
(Konfrontationen,
Stufen 1-10):
Trampassagier
- Auto: 0:
keine Autos
mehr vorhanden
Trampassagier
- Velo: 9:
falls nur eine
Kleinigkeit
passiert oder
ein Fussgänger
auf die
Fahrbahn
tritt, ist der
Velofahrer
durch die
Tramschienen
extrem
gefährdet
Velo - Auto:
0: keine Autos
mehr vorhanden
Velo -
Tramschienen:
9: sobald eine
Unregelmässigkeit
auftritt, kann
der Velofahrer
kaum noch
ausweichen,
höchste
Unfallgefahr
durch
Tramschienen
für
RollstuhlfahrerInnen
praktikabel:
0: stufenloser
Zugang zur
Tramstation
mit
Trottoirkante
vorhanden
Negativpunkt:
Stop des
gesamten
Verkehrs bei
Tram |
Tabelle:
Bilanz des
Umbaus einer
Tramhaltestelle
in eine
Fussgängerzone
- Velos /
Fahrräder
werden in die
Tramschienen
gejagt
|
Vor dem
Umbau
|
|
Nach
dem Umbau
|
|
|

|
Anzahl
Trottoireinheiten
total:
|
186
|
Anzahl
Trottoireinheiten
total:
|
434
|
+
133%
|
|
|
|
|
ohne
Velowege
/ ohne
Radwege:
|
298
|
+
60%
|
|
links
|
rechts
|
|
|
links
|
rechts
|
|
|
|
93
|
93
|
|
|
217
|
217
|
|
+
133%
|
|
|
|
|
ohne
Velowege
|
149
|
149
|
|
+
60%
|
Konfrontationen
(Stufen
0-10)
|
|
|
|
|
|
|
| Trampassagier-Auto |
5
|
|
|
|
|
0
|
Trampassagier-Velo
|
5
|
|
|
|
|
9
|
Velo-Auto
|
3
|
|
|
|
|
0
|
|
|
Velo-Tramschiene
|
0
|
|
|
|
|
9
|
|
|
für
RollstuhlfahrerInnen
nicht
praktikabel
|
10
|
|
|
|
|
0
|
|
|
Konfrontationen
Bilanz:
|
37
|
|
|
|
|
18
|
|
|
|
|
|
|
|
|
|
|
|
|
|
| +
Stop bei Tram |
-
|
|
+
Stop bei Tram
|
-
|
|
|
Nachwort
Eigentlich ist
hier das Werk
zu Ende.
Aber das Werk
des dummen und
velofeindlichen
Baudepartements
in Basel ist
noch lange
nicht zu Ende.
Die
kriminellen
Umbauten von
Tramstationen
gegen
Velofahrer und
Velofahrerinnen
nehmen bis
heute in Basel
KEIN Ende. So
lange der Lohn
stimmt, wird
im dummen und
velofeindlichen
Baudepartement
in Basel bei
den
Tramstationen
auch nichts
geändert. Man
kann immer
weniger sicher
Velo fahren in
Basel. Jede
Tramstation
wird zum
Hindernis.
Danke du
dummes,
velofeindliches
Baudepartement!
So bringt man
die
Veloqualität
tatsächlich
auf 0 herab!
Und die
IG-Velo in
Basel findet
diese
velofeindliche
Politik auch
noch gut und
Vorstandsmitglied
Kathrin
Schweizer
sagte mir am
Telefon im
Jahr 2006
wörtlich, ich
können mit
meinen
Vorschlägen
"nicht
bestimmen, was
die IG-Velo
macht".
Tatsächlich
braucht es für
velofreundliche
Logik eine
bestimmte
geistige Kraft
gegen die
Nichtwisser im
Baudepartement.
Die IG-Velo
schwimmt mit
dem
Baudepartement
mit und
entwickelt
keine geistige
Kraft gegen
die Velofeinde
im
Baudepartement.
Ja, dann kann
man in Basel
immer weniger
Velo fahren.
Schade, die
relativ flache
Stadt wäre
sehr geeignet.
Michael
Palomino
2006